Eladó családi ház Veszprém 42 900 000 Ft

Leírás

Veszprém egyik kertvárosi részén, egy csendes, napsütötte telken távol a város zajától, mégis elérhető távolságra a belváros nyüzsgésétől áll egy ház. Nem új, de méltósággal viseli évtizedeit, és több, mint egy ingatlan. Ez egy lehetőség, egy jövő kezdete új tulajdonosának.

A 211 m²-es telek délnyugati tájolású, 50%-ban beépíthető, és pont akkora, hogy otthonos kertet kínáljon anélkül, hogy túl nagy terhet jelentene fenntartani. Egy kert, ahol kisgyermekek játszhatnak, ahol hosszú nyári estéken beszélgetések születnek, és ahova jó hazatérni.

Az 1960-as években épült, kő és tégla falazatú, statikailag jó állapotú, összközműves ház a mostani formájában egyszerű, egyszintes, cseréptetős épület, 80 m², két szoba, egy konyha, fürdő, külön WC, előszoba, padlásfeljáró és padlástér, ahogy régen építették – praktikusan, jó arányokkal. De a valódi értéke abban rejlik, amit belőle ki lehet hozni.
A ház jelenleg felújítandó, stabil, nyitott az újra.

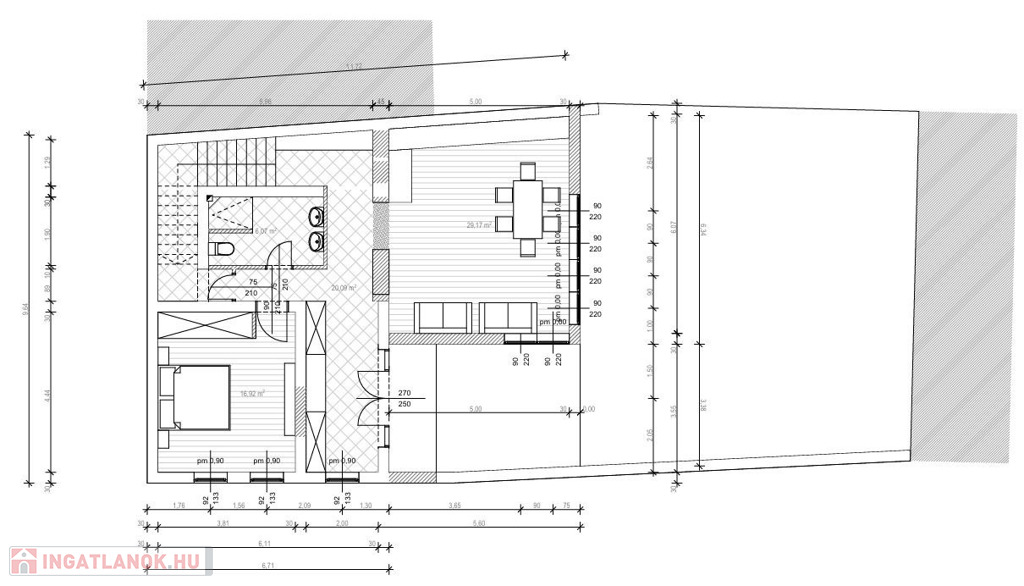
És most jön a legszebb része: már elkészült a terv egy új kezdethez – egy új építési terv, amely a meglévő szerkezet bővítésével vagy újraépítésével egy 105 m²-es, kétszintes, modern otthon kialakítását teszi lehetővé.
A tetőteraszról pedig – a lehetőségek legszebb szimbólumaként – a veszprémi vár panorámája tárulhat elénk.

És ami még fontosabb: az építési és településképi engedélyek már rendelkezésre állnak. Ez azt jelenti, hogy az új tulajdonos nem csak álmodozhat, a lehetőség adott – csak egy döntés hiányzik hozzá és akár azonnal építkezhet is.

Ez az ingatlan nem azoknak szól, akik a készen kapott megoldásokat keresik. Hanem azoknak, akik szeretnek alkotni, teremteni, akik látják a lehetőséget egy-egy régi fal mögött, akik egy házban nem csak munkát, hanem jövőt látnak.

Ez a ház készen áll arra, hogy valaki meglássa benne az álmait – és meg is valósítsa őket, mindössze 20 perc sétára Veszprém belvárosától, kávézókkal, kulturális központokkal, programokkal, üzletekkel. Elhelyezkedéséből adódóan kiváló adottságokkal rendelkezik, közelben iskola, óvoda, orvosi rendelő, gyógyszertár, üzletek, buszmegálló megtalálható.

Kinek ajánlom?
* Fiatal pároknak, akik saját stílusuk szerint építenének modern, élhető otthont
* Olyan családoknak, akik a belváros közelsége mellett vágynak csendre, saját kertre
* Befektetőknek, akik felismerik az értéket egy engedéllyel rendelkező városi telken
* Kreatív embereknek, akik értéknövelő potenciált látnak a városi telkek ritkaságában

Az ingatlan per- és tehermentes, magán tulajdonú, otthon felújítási támogatás igényelhető rá.
Szeretettel várom hívását!
+36 30 140 3328
Dream-Ing, Álomból Otthont!

Családi ház részletei

Ár: 42 900 000 Ft
Méret: 80 négyzetméter
Azonosító: 11591648
Irodai azonosító: 336041
Telek: 211 négyzetméter
Ingatlan állapota: Felújítandó
Jelleg: családi ház
Építőanyag: Kérdezzen rá a hirdetőtől »
Fűtés jellege: Egyéb
Fűtés módja: Gáz
Komfort fokozat: Összkomfort
Egész szobák: 2